一、功能与用途
ZPG-L 系列自动反冲洗排污过滤器可广泛应用于中央空调系统、工业冷却水系统、热交换系统、热水锅炉系统及其他各种供水管道系统,特别是二十四小时连续运行的不停机系统。可以滤去水中的各种机械杂质、水运行过程中产生的颗粒杂物,确保系统设备的可靠运行。
二、结构与工作原理
ZPG-L 系列自动反冲洗排污过滤器采用高强度的不锈钢网,具有处理量大,使用寿命长、清洗效率高等特点。随流体进入过滤器入口的杂质被网孔截留,集结到滤网后端。当需要排污的时候,转动手柄关闭导流阀板,同时打开排污阀。这时被阻截的高压水流被迫从过滤网筒的入口段孔进入滤筒外侧与壳体夹层,反向从滤网外侧冲洗粘附在网孔上的杂质,从负压的排污口排出,达到清洁过滤网的目的。在排污的过程中,大部分流体依然在系统管道内循环,真正实现不断流操作,提高生产效率。
三、反冲清过滤原理

四、性能特点
◎ ZPG-L 型自动反冲洗排污过滤器运行管理方便,过滤速度高、冲洗简便可靠、不需动力、反冲洗能力强,同时节能
◎ 冲洗排污过程都在全流量下正常工作,既保持系统高流量,又具有很低的压力降(小于0.05~0.1m水柱),避免了由于流速低而造成
的表面污渍
◎ 过滤网筒是整体联接于管体上,所以刚性强度好,不易损坏,使用寿命长
◎ 过滤精度有:3.0mm~0.3mm,也可根据用户要求选材制造

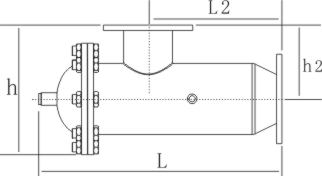
五、安装参数
| 规格型号 |
公称通径
DN(mm) |
排污口
DN(mm) |
最大流量
(m3/h) |
L
(mm) |
L2
(mm) |
h
(mm) |
h2
(mm) |
| ZPG-25L |
25 |
15 |
4.9 |
300 |
|
160 |
|
| ZPG-40L |
40 |
15 |
12 |
320 |
|
180 |
|
| ZPG-50L |
50 |
15 |
19 |
350 |
|
200 |
|
| ZPG-65L |
65 |
25 |
28 |
380 |
|
220 |
|
| ZPG-80L |
80 |
25 |
50 |
450 |
|
260 |
|
| ZPG-100L |
100 |
32 |
80 |
540 |
|
320 |
|
| ZPG-125L |
125 |
40 |
125 |
630 |
|
370 |
|
| ZPG-150L |
150 |
50 |
180 |
730 |
|
450 |
|
| ZPG-200L |
200 |
65 |
320 |
890 |
|
540 |
|
| ZPG-250L |
250 |
80 |
490 |
1120 |
|
630 |
|
| ZPG-300L |
300 |
100 |
710 |
1310 |
|
700 |
|
| ZPG-350L |
350 |
125 |
970 |
1520 |
|
800 |
|
| ZPG-400L |
400 |
150 |
1260 |
1730 |
|
840 |
|
| ZPG-450L |
450 |
150 |
1590 |
1900 |
|
960 |
|
| ZPG-500L |
500 |
150 |
1970 |
2080 |
|
1080 |
|
| ZPG-600L |
600 |
200 |
2850 |
2500 |
|
1210 |
|
1、* 号表示螺丝连接口,其它为法兰连接
2、可按客户要求订做各种尺寸口径过滤器
3、表中参数仅供参考,设备实际尺寸以供货状态为准
六、安装位置
在安装ZPG-L 之前,要对当前的水处理系统有足够的了解,熟悉系统的管道布置及水流方向,以能在正确的位置安装过滤设备。
ZPG-L 型自动反冲洗排污过滤器可取代90O弯头,水平或垂直安装,垂直安装时,水流方向应该自上而下;安装时应注意机体外壳上箭头方向必须与水流方向一致。正常运行时,导流阀板处于开启状态。

七、使用方法
◎ 正常过滤状态 …… 通过转动手柄到“开”的标记处,控制滤网内的导流阀板打开管道流体无阻碍地通过过滤器,排污口呈关闭
状态。
◎ 反冲洗排污状态 …… 手摇转动手柄到“关”的标记处,导流阀板将呈关闭状态,打开排污口,管道内受阻流体部分快速从排污
口喷出,同时将滤网后端的杂质冲出,观察排污水流无杂质时,重新开启导流阀板,关闭排污口,完成一次反冲排污过程。
.jpg)
八、出厂标配
| 序号 |
名称 |
特性 |
品牌 |
产地 |
| 1 |
滤网材料 |
SUS304滤网、孔径2000um~2500um |
|
|
| 2 |
清洗装置 |
转向阀门 |
|
|
| 3 |
密封 |
V型夹布,进口材质 |
|
|
| 4 |
过滤器壳体材质 |
碳钢/Q235-B |
|
|
| 5 |
金属表面处理 |
磷化处理,内胆环氧防腐涂层,
外壳喷涂醇酸漆处理 |
|
|
注:标准配置是生产时优先采用的方案,由于原料采购及客户需求多方面的影响,实际配置以出厂为准。 |